Rent: £2,340 pcm, (per person is £585 pcm or £135 a week), Utility Bills and broadband included (subject to Usage Allowance)











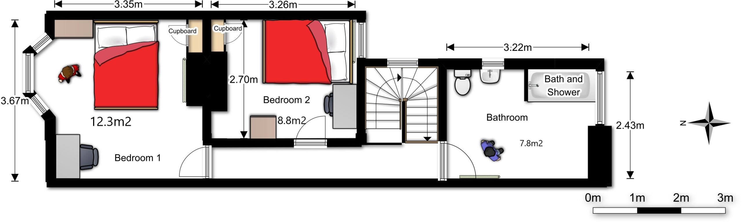
Fully Furnished 4 bedroom property – What’s Included?
The details:
To enquire, please email us quoting reference number: Enquiries@karlsstudentaccommodation.co.uk